一、小户型深度图样(现代风格)

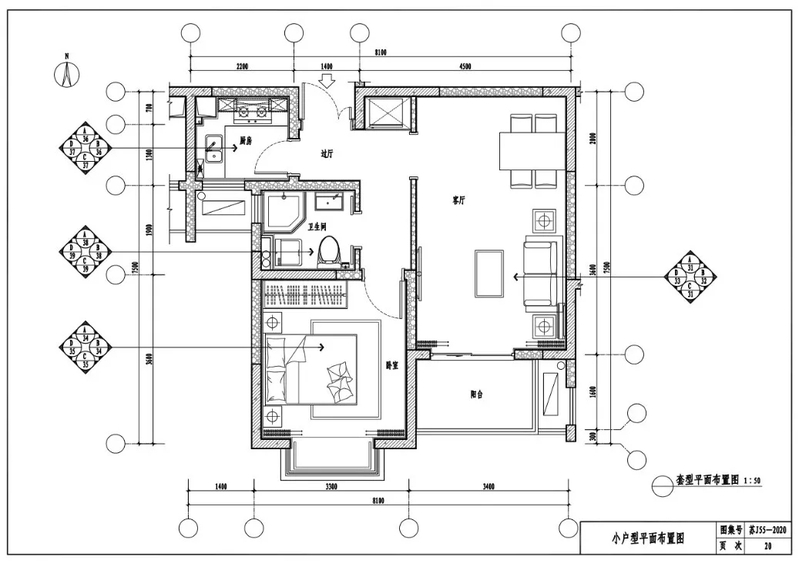
小户型平面布置图

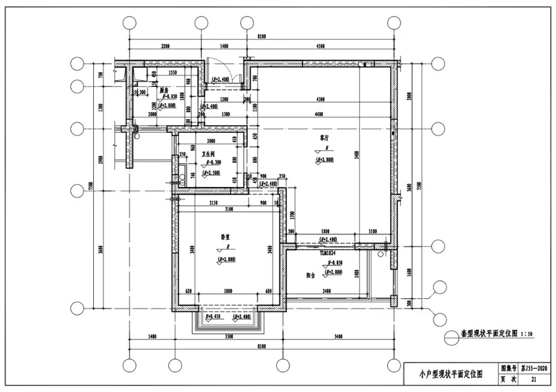
小户型现状平面定位图

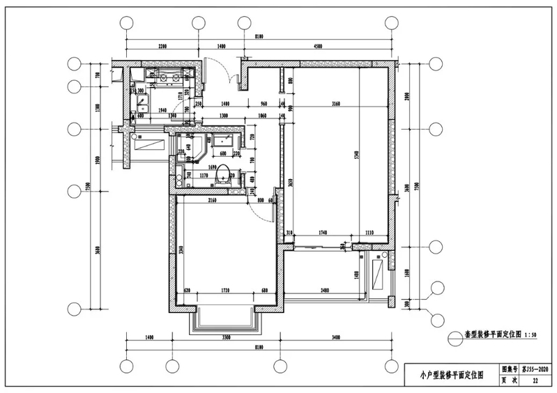
小户型装修平面定位图

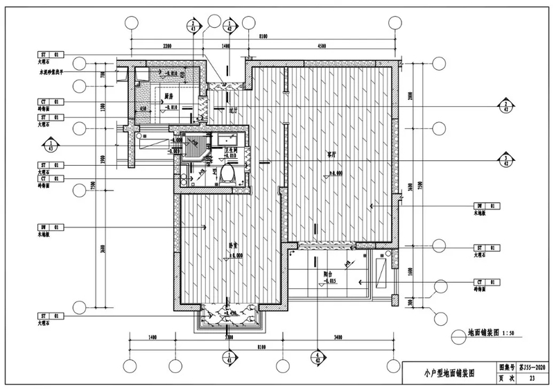
小户型地面铺装图

小户型顶棚布置图

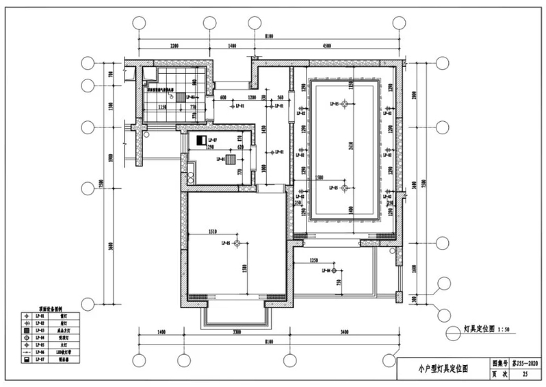
小户型灯具定位图

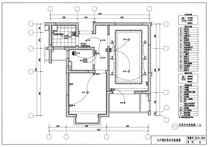
小户型灯具开关连线图

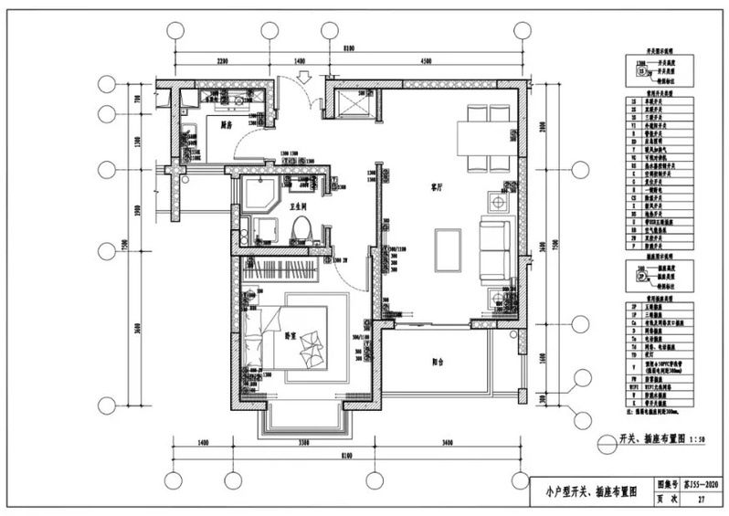
小户型开关、插座布置图

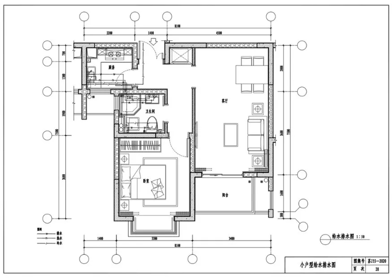
小户型给水排水图

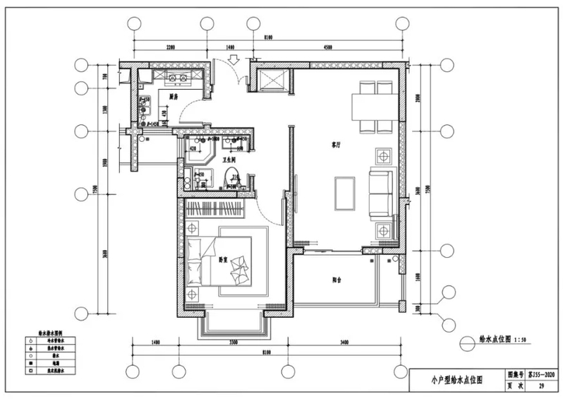
小户型给水点位图

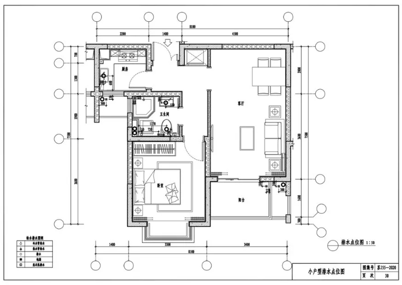
小户型排水点位图

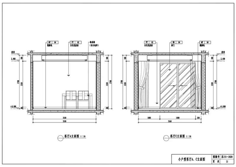
小户型客厅A、C立面图

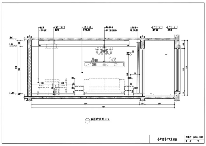
小户型客厅B立面图

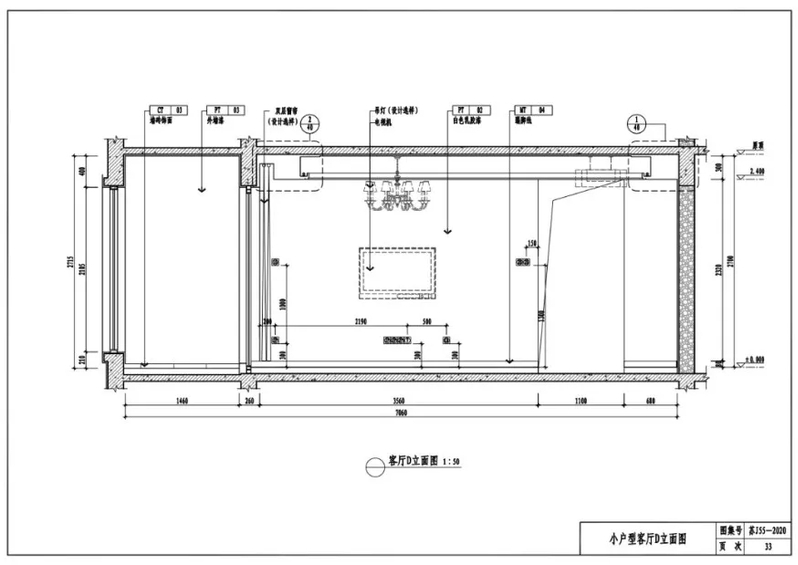
小户型客厅D立面图

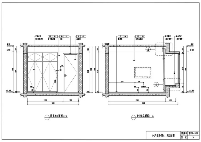
小户型卧室A、B立面图

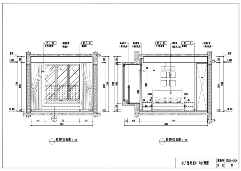
小户型卧室C、D立面图

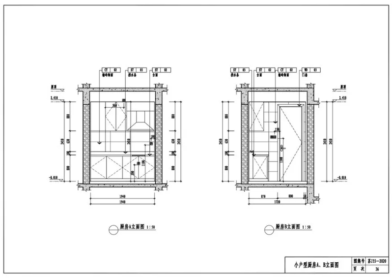
小户型厨房A、B立面图

小户型厨房C、D立面图

小户型卫生间A、B立面图

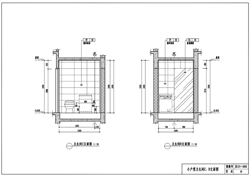
小户型卫生间C、D立面图

小户型天花节点大样图

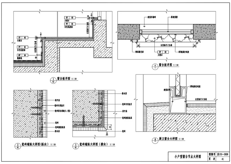
小户型窗合节点大样图

小户型门槛石节点大样图

小户型地面、墙面节点大样图

小户型装饰材料终饰明细表
二、中户型深度图样(现代西式风格)

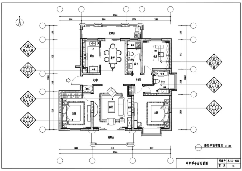
中户型平面布置图

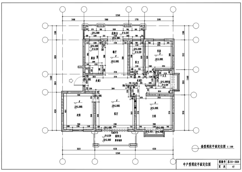
中户型现状平面定位图

中户型装修平面定位图

中户型地面铺装图

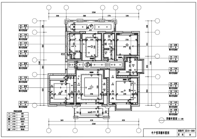
中户型顶棚布置图

中户型灯具定位图

中户型灯具开关连线图

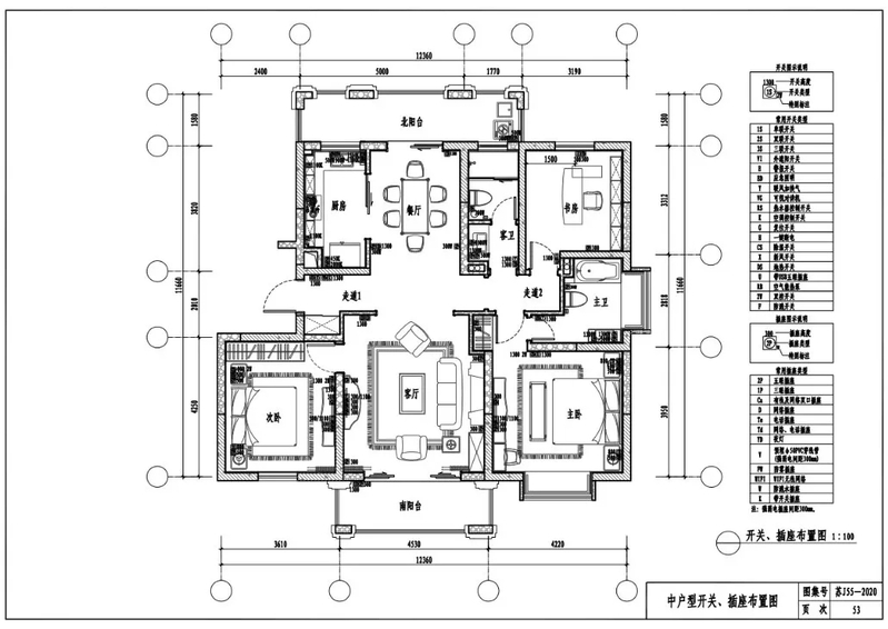
中户型开关、插座布置图

中户型给水排水图

中户型给水点位图

中户型排水点位图

中户型客厅A立面图

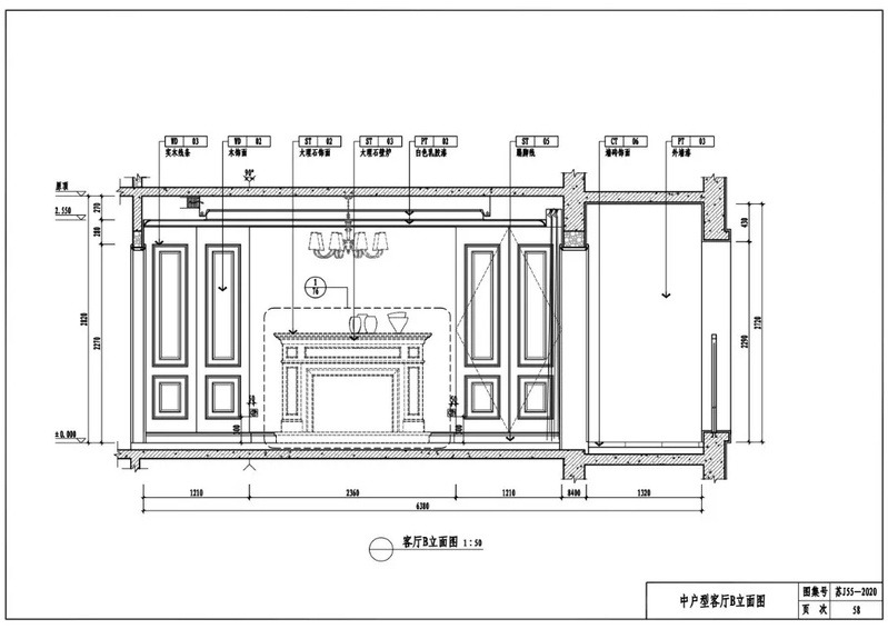
中户型客厅B立面图

中户型客厅C立面图

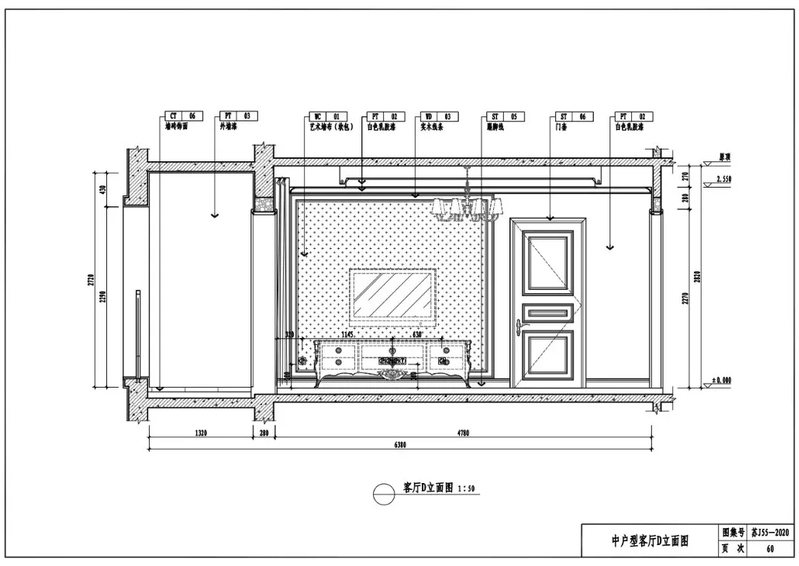
中户型客厅D立面图

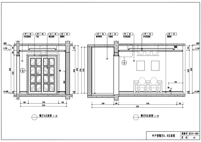
中户型餐厅A、B立面图

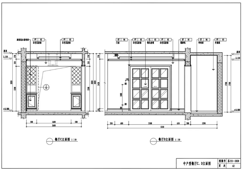
中户型餐厅C、D立面图

中户型主卧室A、B立面图

中户型主卧室C、D立面图

中户型次卧室A、B立面图

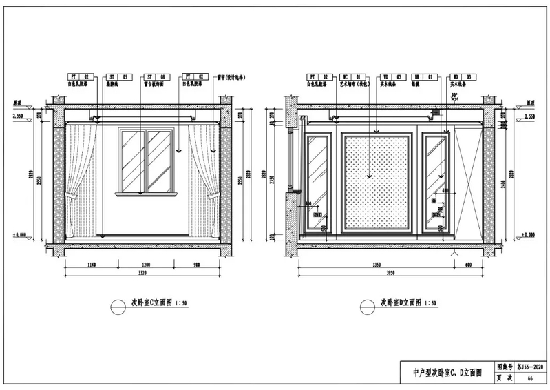
中户型次卧室C、D立面图

中户型书房A、B立面图

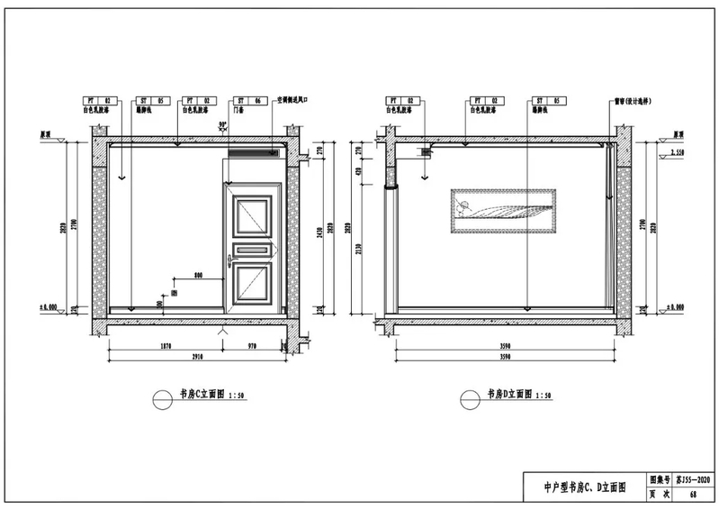
中户型书房C、D立面图

中户型厨房A、B立面图

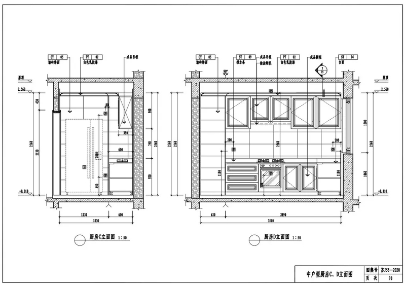
中户型厨房C、D立面图

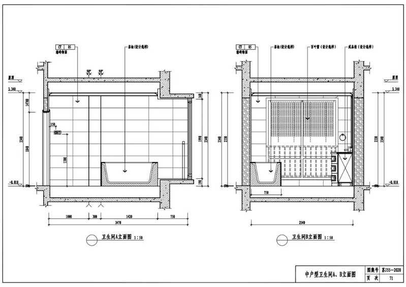
中户型卫生间A、B立面图

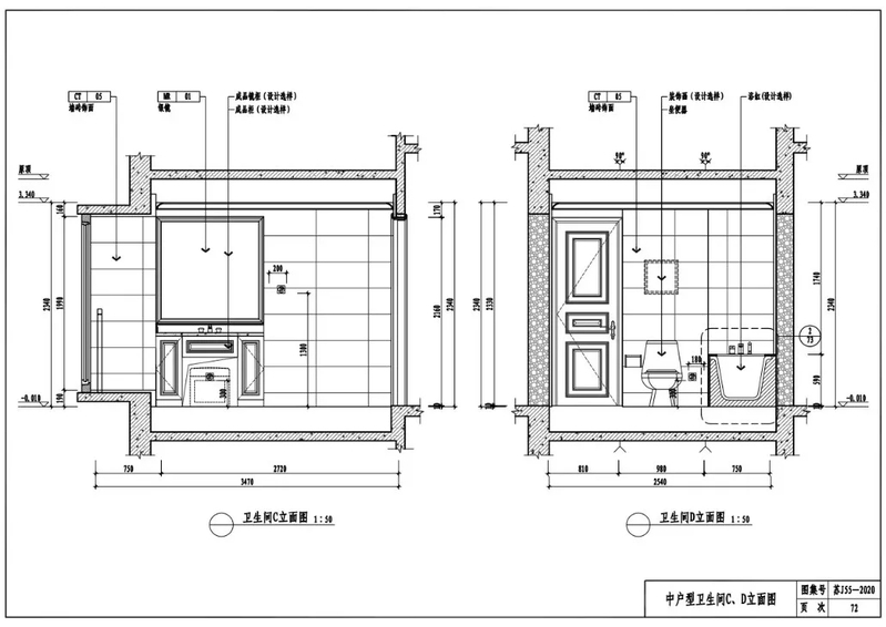
中户型卫生间C、D立面图

中户型天花、地面节点大样图

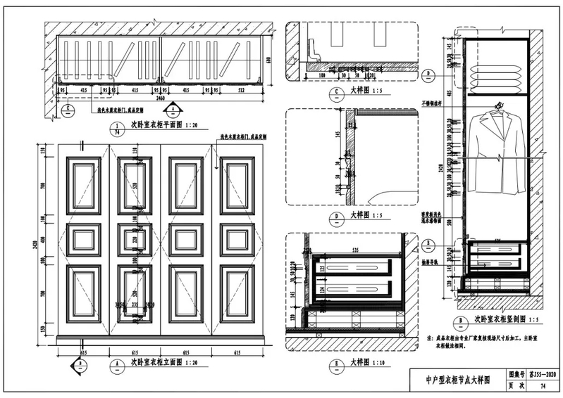
中户型衣柜节点大样图

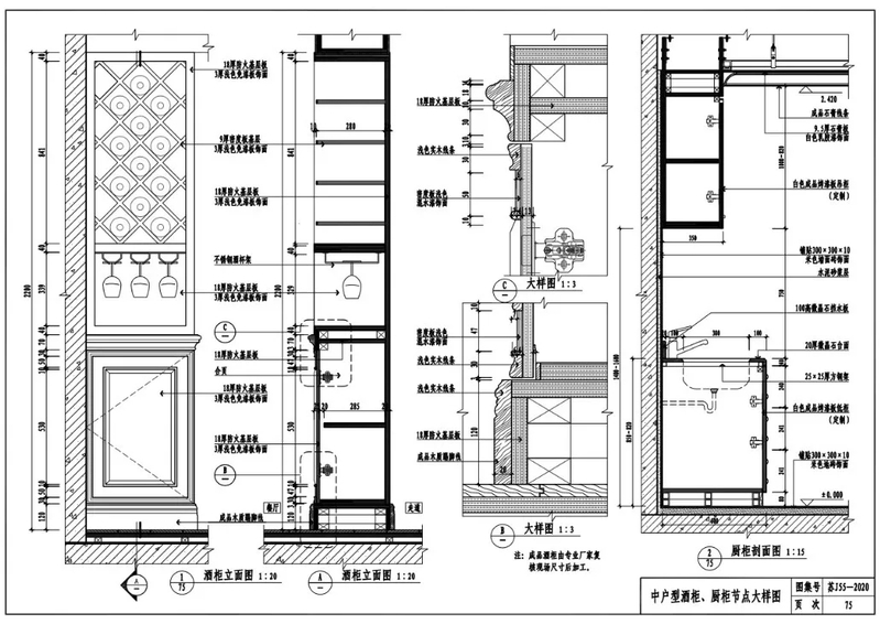
中户型酒柜、橱柜节点大样图

中户型壁炉节点大样图

中户型门型节点大样图一

中户型门型节点大样图二

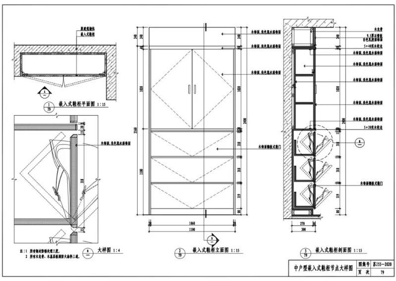
中户型嵌入式鞋柜节点大样图

中户型装饰材料终饰明细表

中户型客厅效果图

中户型客厅卧室图
